Циклоны
- Изготовление под заказ по чертежам заказчика и стандартных форм в короткие сроки.
- Комплектуем промышленными вентиляторами, осуществляем расчёт и подбор оборудования.
Циклоны ЦН-15(ЦН-11) предназначены для сухой очистки газов, выделяющихся при некоторых технологических процессах (сушке, обжиге, агломерации, сжигании топлива и т. д.), а также аспирационного воздуха в различных отраслях промышленности.
Циклоны нельзя применять в условиях токсичных или взрывоопасных сред, а также для улавливания сильно слипающейся пыли.
В зависимости от требований предъявляемых к очистке газа, циклоны могут иметь либо самостоятельное применение, либо использоваться в качестве аппаратов первой или второй ступеней очистки в сочетании с другими газоочистными аппаратами. Они устанавливаются на всасывающем участке системы газоходов.
Циклоны могут изготавливаться как левого так и правого исполнений.
В зависимости от компоновки групповые циклоны могут быть с камерой очищенного газа в виде «улитки» или «сборника».
Бункеры циклонов – пирамидальной формы.
Для нормальной работы циклонов должна быть обеспечена непрерывная выгрузка пыли.
В технической характеристике приведены значения производительности, отнесенные к скорости в цилиндрической части циклона V =2,5 и 4,0 м/с. В обычных условиях оптимальной считается скорость 4,0 м/с. Скорость 2,5 м/с рекомендуется принимать при работе с абразивной пылью.
В зависимости от температуры окружающей среды циклоны изготавливают из углеродистой стали (при температуре до –40°С) и низколегированной стали (при температуре ниже –40°С).
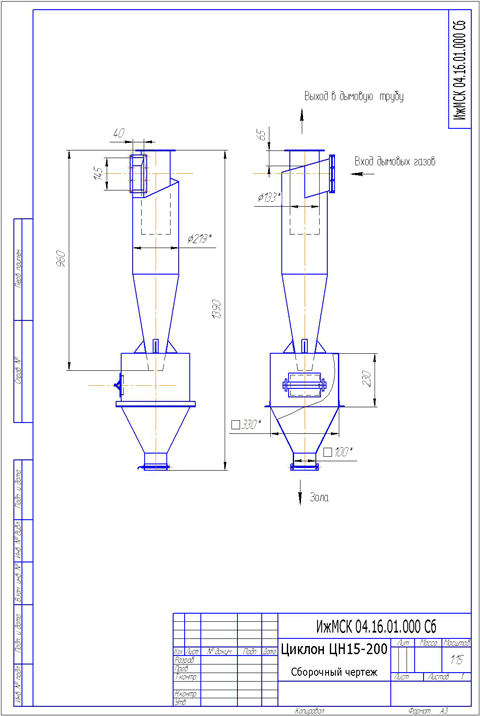
Условное обозначение:
ЦН -15 (ЦН-11)– где цифра угол наклона входного патрубка относительно горизонтали (град.); цифры после тире: первая – внутренний диаметр цилиндрической части циклона (мм); вторая (после знака умножения – количество циклонов в группе; У – с камерой очищенного газа в виде «улитки» или C — с камерой очищенного газа в виде «сборника»; П – пирамидальная форма бункера.

| Параметры | Величина |
| Допустимая запыленность газа, г/куб.м | |
| для слабослипающейся пыли | не более 1000 |
| для среднеслипающейся пыли | 250 |
| Температура очищаемого газа, °С | не более 400 |
| Максимальное давление (разрежение), кгс/кв.м | 500 |
| Коэффициент гидравлического сопротивления: | |
| для одиночных циклонов | 147 |
| для групповых циклонов: | |
| с улиткой | 175 |
| со сборником | 182 |
| Эффективность очистки от пыли = 10 мкм, плотностью 2,72 (куб.см), % | 80 |

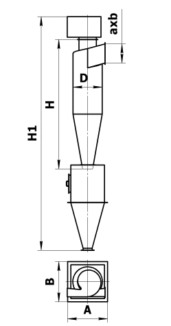
Циклоны ЦН-15 одиночного исполнения с бункером и улиткой
| Типоразмер | Производительность м³/ч при V=3,5 | Основные размеры, мм | ||||
| D | H1 | H | a x b | A x B | ||
| Циклон ЦН-15-200х1УП | 400 | 200 | 1876 | 912 | 132х52 | 436х436 |
| Циклон ЦН-15-300х1УП | 900 | 300 | 2508 | 1368 | 198х78 | 606х606 |
| Циклон ЦН-15-400х1УП | 1600 | 400 | 3080 | 1824 | 264х104 | 706х706 |
| Циклон ЦН-15-500х1УП | 2500 | 500 | 3942 | 2280 | 330х130 | 906х906 |
| Циклон ЦН-15-600х1УП | 3600 | 600 | 4544 | 2736 | 396х156 | 1034 |
| Циклон ЦН-15-700х1УП | 9000 | 700 | 5206 | 3192 | 462х182 | 1134 |
| Циклон ЦН-15-800х1УП | 6300 | 800 | 6028 | 3648 | 528х208 | 1336 |
| Циклон ЦН-15-900х1УП | 8000 | 900 | 6742 | 4104 | 594х234 | 1536 |
| Циклон ЦН-15-1000х1УП | 9900 | 1000 | 7574 | 4560 | 660х260 | 1736 |
| Циклон ЦН-15-1200х1УП | 14200 | 1200 | 8816 | 5472 | 792х312 | 2010 |
| Циклон ЦН-15-1400х1УП | 19400 | 1400 | 10319 | 6384 | 924х364 | 2410 |
| Циклон ЦН-15-1600х1УП | 25300 | 1600 | 11614 | 7296 | 1056х416 | 2610 |
| Циклон ЦН-15-1800х1УП | 28500 | 1800 | 13204 | 8208 | 1188х468 | 3012 |
| Циклон ЦН-15-2000х1УП | 40000 | 2000 | 14298 | 9120 | 1320х520 | 3012 |
Циклоны ЦН-15 группового исполнения с бункером и улиткой
| Типоразмер | Производительность м³/ч при V=4 | Основные размеры, мм | ||||
| D | H | L | a x b | A x B | ||
| Циклон ЦН-15-300х2УП | 2000 | 300 | 2643 | 795 | 206х184 | 700х500 |
| Циклон ЦН-15-400х1УП | 3600 | 400 | 3350 | 890 | 274х242 | 800х600 |
| Циклон ЦН-15-500х2УП | 5600 | 500 | 4066 | 1225 | 340х294 | 1100х700 |
| Циклон ЦН-15-600х2УП | 8100 | 600 | 4682 | 1336 | 406х346 | 1200х800 |
| Циклон ЦН-15-700х2УП | 11100 | 700 | 5488 | 1555 | 472х398 | 1400х800 |
| Циклон ЦН-15-800х2УП | 14400 | 800 | 6204 | 1750 | 538х450 | 1600х900 |
| Циклон ЦН-15-900х2УП | 18300 | 900 | 6910 | 1920 | 604х502 | 1800х1000 |
| Циклон ЦН-15-400х4УП | 7200 | 400 | 3450 | 1006 | 474х274 | 800х1000 |
| Циклон ЦН-15-500х4УП | 11300 | 500 | 4166 | 1100 | 578х340 | 950х1200 |
| Циклон ЦН-15-600х4УП | 16300 | 600 | 4882 | 1335 | 682х406 | 1150х1450 |
| Циклон ЦН-15-700х4УП | 22000 | 700 | 5588 | 1490 | 786х472 | 1300х1700 |
| Циклон ЦН-15-800х4УП | 28900 | 800 | 6304 | 1705 | 890х538 | 1500х1900 |
| Циклон ЦН-15-900х4УП | 36600 | 900 | 7010 | 1904 | 994х604 | 1700х2150 |
| Циклон ЦН-15-500-6УП | 16900 | 500 | 4216 | 1765 | 928х340 | 1600х1600 |
| Циклон ЦН-15-600-6УП | 24400 | 600 | 5032 | 2075 | 1102х406 | 1900х1900 |
| Циклон ЦН-15-700-6УП | 33100 | 700 | 5688 | 2350 | 1276х472 | 2200х2200 |
| Циклон ЦН-15-800-6УП | 43300 | 800 | 6504 | 2555 | 1450х538 | 2400х2500 |
| Циклон ЦН-15-500-8УП | 22580 | 500 | 4366 | 2300 | 1188х340 | 2150х1850 |
| Циклон ЦН-15-800-8УП | 70000 | 800 | 7204 | 3468 | 1856х538 | 3300х2900 |
Рекомендации по эксплуатации
Для увеличения срока службы циклонов, подвергающихся абразивному износу, в местах наибольшего износа (в нижней и во входной частях корпуса) рекомендуется приваривать дополнительные листы с наружной стороны стенок циклонов. Циклоны диаметром менее 800 мм из-за повышенного износа не следует применять для улавливания абразивных пылей. При работе циклонов должна быть обеспечена непрерывная выгрузка уловленной пыли. При этом уровень пыли в бункерах должен быть не выше плоскости, отстоящей от крышки бункера на 0,5 диаметра циклона.
Примечание: УП – циклоны с улиткой и пирамидальным бункером, СП – циклоны с воздухосборником и пирамидальным бункером. Изготавливаем к циклонам постаменты, бункера, воздуховоды, а также группы циклонов неуказанные выше. Изготавливаем циклоны из нержавеющей стали. Изготавливаем устройства выгрузки: шиберные затворы, челюстные затворы, пылевые затворы.
